長野市の西部の山間集落に建つ築年不詳の日本家屋
長野市の西部、中条地区に立つ築年数不詳の家です。独特な色の壁、立派な梁、柱や梁などの構造材を表に出した「現し(あらわし)」など、日本家屋ならではの趣があります。経年劣化があるために大規模な改修が必要です。また、基礎の傷みにより傾きがあります(特に北側)。
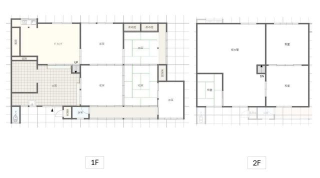
1階は、玄関とDKがあり、右側に和室4部屋が田の字型に並ぶ、農家住宅らしい間取りです。さらに、もう1部屋、和室が庭に突き出しています。2階には和室のほか、広い板の間があります。敷地内には、物置と土蔵付き。土砂災害警戒区域(急傾斜地及び土石流イエローゾーン)。小学校は約5.9㎞、中学校は約6.1㎞。
【間取り図】
【物件データ】
- 住所:長野県長野市
- 価格:100万円
- 間取り:8DK
- 土地面積:170坪・565㎡
- 延床面積:62坪・207㎡
- 地目:宅地
- 法令制限:都市計画区域外
- 築年数:不詳
- トイレ:簡易水洗
- 付属建物:物置、土蔵
- 交通アクセス:北陸新幹線長野駅から車で約35分
上信越自動車道長野ICより車で約40分 - 改修費補助:最大160万円
- 家財処分費補助:最大30万円
【問い合わせ先】
長野市移住推進課 ☎026-224-7721
写真で見る物件詳細「立派な梁や板戸など趣ある木造2階建て」
8DK内観を紹介
■玄関
広い土間の玄関。一画にはカーテンで仕切られた収納スペースがあり、農作業道具などが置けます。
■和室
1階には和室が4部屋、2階にも和室があります。太い梁や板戸、床の間など、趣ある造りです。
■キッチン
床や壁などに経年劣化が見られ、補修が必要です。
■土蔵
敷地内に立つ土蔵です。ほかに物置もあります。
↓↓ 次ページでは、おすすめスポットを紹介! ↓↓
この記事のタグ
この記事を書いた人
田舎暮らしの本編集部
日本で唯一の田舎暮らし月刊誌『田舎暮らしの本』。新鮮な情報と長年培ったノウハウ、田舎で暮らす楽しさ、心豊かなスローライフに必要な価値あるものを厳選し、多角的にお届けしています!
Twitter:@inakagurashiweb
Instagram:@inakagurashinohon
Website:https://inakagurashiweb.com/
田舎暮らしの記事をシェアする





















